Plan de maison PALOMA : T4 135 m2 Traditionnelle

Nous proposons des plans issus de nos dernières réalisations à Toulouse

Ces derniers possèdent l’avantage d’être évolutifs, et modelables selon vos gouts et vos envies !

Modèle PALOMA

T4

Total habitable : 135,73 m²

Porche couvert : 4,12 m²

Terrasse 1 : 17,69 m²

Terrasse 2 : 29,80 m²

Garage : 34,71 m²

Rangement : 11,30 m²

Détail des surfaces

Hall d'entrée : 3,60 m²

Pièce de vie : 47,64 m²

Cuisine ouverte : 15,03 m²

Cellier : 5,30 m²

WC 1 : 2,00 m²

Chambre 1 : 11,76 m²

Chambre 2 : 13,44 m²

Salle de bain : 5,58 m²

WC 2 : 2,00 m²

Chambre parentale : 12,54 m²

Dressing : 6,16 m²

Salle d'eau : 3,98 m²

Dégagement : 6,70 m²

Modèle PALOMA

T4

Total habitable : 135,73 m²

Porche couvert : 4,12 m²

Terrasse 1 : 17,69 m²

Terrasse 2 : 29,80 m²

Garage : 34,71 m²

Rangement : 11,30 m²

Détail des surfaces

Hall d'entrée : 3,60 m²

Pièce de vie : 47,64 m²

Cuisine ouverte : 15,03 m²

Cellier : 5,30 m²

WC 1 : 2,00 m²

Chambre 1 : 11,76 m²

Chambre 2 : 13,44 m²

Salle de bain : 5,58 m²

WC 2 : 2,00 m²

Chambre parentale : 12,54 m²

Dressing : 6,16 m²

Salle d'eau : 3,98 m²

Dégagement : 6,70 m²

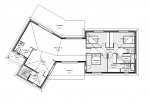
Plan du rez-de-chaussée et du 1er étage

Ce plan vous intéresse ?

Je souhaite en savoir plus sur ce projet (prix, plan à l’échelle, agencement, …)

Le mot du designer

 » Cette maison aux formes et matériaux plutôt traditionnels, offre cependant des espaces résolument contemporains, tels que le grand espace de vie avec une cuisine ouverte et la suite parentale avec des surfaces généreuses. « 

Objectif Architectural

La maison est située sur un terrain avec une pente orientée Nord-Ouest. Afin de profiter à la fois de la vue sur les coteaux et de la lumière du soleil, la forme générale de la construction est conçue selon un V et la pièce de vie est traversante.

Description des volumes

L’habitation est conçue avec un grand espace de vie traversant, donnant sur deux terrasses situées de part et d’autre. La partie nuit, située à l’Est, est composée de trois chambres dont une suite parentale avec dressing et salle d’eau, d’une salle de bain et d’un WC. Le petit plus est le sous-sol, où se trouve le garage, et permis grâce à la pente naturelle du terrain.

 

je souhaite recevoir le plan de ce modèle de maison



    J'accepte les conditions de confidentialité