Plan de maison SARA : T4 103 m2 Contemporaine

Nous proposons des plans issus de nos dernières réalisations à Toulouse.

Ces derniers possèdent l’avantage d’être évolutifs, et modelables selon vos gouts et vos envies !

Modèle SARA

T4

Total habitable : 102,93 m²

Garage : 17,60 m²

Cellier : 6,37 m²

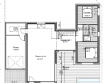
Détail des surfaces

Entrée : 3,57 m²

Pièce de vie : 44,10 m²

Chambre 1 : 11,32 m²

Chambre 2 : 10,28 m²

Chambre 3 : 10,66 m²

WC : 1,59 m²

Salle d'eau : 4,67 m²

Dégagement : 3,04 m²

Pallier coin bureau : 9,71 m²

Salle d'eau 2 : 3,99 m²

Modèle SARA

T4

Total habitable : 102,93 m²

Garage : 17,60 m²

Cellier : 6,37 m²

Détail des surfaces

Entrée : 3,57 m²

Pièce de vie : 44,10 m²

Chambre 1 : 11,32 m²

Chambre 2 : 10,28 m²

Chambre 3 : 10,66 m²

WC : 1,59 m²

Salle d'eau : 4,67 m²

Dégagement : 3,04 m²

Pallier coin bureau : 9,71 m²

Salle d'eau 2 : 3,99 m²

Plan du rez-de-chaussée et étage

Ce plan vous intéresse ?

Je souhaite en savoir plus sur ce projet (prix, plan à l’échelle, agencement, …)

Le mot du designer

 » La fonctionnalité de cette maison est poussée à son maximum ! Les différents volumes sont physiquement bien cloisonnés ce qui permet à chacun de vivre en harmonie et en intimité. Nous apprécions particulièrement la grande pièce de vie bénéficiant d’une lumière traversante et de grandes baies vitrées. Le bardage bois à l’étage permet de donner un contraste supplémentaire à l’ensemble. « 

Objectif Architectural

Le point de départ de ce projet était de créer une maison contemporaine entièrement recouverte d’une toiture terrasse végétalisée. Nous devions également concevoir trois volumes distincts bien séparé : La suite parentale / le coin nuit / l’espace de vie.

Description des volumes

Cette réalisation est décomposée en deux volumes totalement distincts: Au rez de chaussé le volume définie par la pièce de vie tient une place prépondérante. Le dégagement central, permet de cloisonner distinctement les chambres du rez de chaussé du reste de l’habitation. A l’étage nous retrouvons une suite parentale totalement isolée comprenant dressing et salle d’eau. Toujours pratique le garage est accessible directement depuis la maison au travers du cellier qui lui même est accessible depuis l’espace cuisine.

 

je souhaite recevoir le plan de ce modèle de maison



    J'accepte les conditions de confidentialité